QUỸ CĂN 2PN TỐT NHẤT VINHOMES WEST POINT

Căn hộ 02 PN là loại hình căn hộ phổ thông được khách hàng ưa chuộng và lựa chọn nhiều nhất. Đó cũng là điều dễ hiểu bởi xét về nhu cầu sử dụng, tài chính, tiềm năng đầu tư, căn hộ 02 PN có rất nhiều lợi thế: Dễ mua – Dễ bán – Dễ cho thuê
So với căn hộ 01 PN có giá thành rẻ nhưng diện tích nhỏ thậm chí chật chội nếu gia chủ sắp xếp không gian thiếu khéo léo, hoặc so với căn hộ 03, 04 PN diện tích rộng nhưng giá thành cao, căn hộ 02 PN có nhiều ưu điểm đáp ứng được đa dạng nhu cầu của khách hàng:
1. Giá cả hợp lý, phù hợp tài chính số đông
2. Diện tích linh hoạt, tối ưu công năng sử dụng
3. Phù hợp với đa dạng nhu cầu (người độc thân, gia đình trẻ, người cao tuổi)
4. Đảm bảo không gian riêng cho mỗi thành viên
5. Là khoản đầu tư mang lại lợi nhuận lâu dài
Nằm tại trung tâm hành chính quận Nam Từ Liêm, Hà Nội, Vinhomes West Point là một trong số ít dự án cao cấp sở hữu nhiều hạng mục căn hộ 02 phòng ngủ phù hợp với đa dạng nhu cầu sử dụng của người mua
Điểm nhấn nổi bật của căn hộ Vinhomes West Point phải kể tới lối thiết kế tối ưu hóa diện tích cũng như công năng sử dụng. Do đó, gia chủ có thể thỏa sức sáng tạo trang trí cũng như lắp đặt nội thất cho mỗi gian phòng mà vẫn đảm bảo không gian rộng, thoáng.
Một điểm cộng nữa dành cho căn hộ 02 PN nói riêng và các căn hộ Vinhomes West Point nói chung đó là dự án tọa lạc tại Quận Nam Từ Liêm - một trong những quận nội thành có mật độ người Hàn, Nhật đông nhất Hà Nội. Nhu cầu thuê nhà của các cá nhân hoặc gia đình người nước ngoài là rất cao. Việc sở hữu một căn hộ 02 PN cho thuê sẽ là phương án đầu tư mang lại lợi nhuận lâu dài, hiệu quả dành cho những khách hàng đang tìm kiếm một kênh sinh lời tại trung tâm hành chính của Hà Nội
Cơ hội nhận gói quà tặng lên tới 330 triệu đồng khi đặt mua căn hộ từ nay đến hết tháng 4/2020
CĂN 2PN TÒA WEST 3

Là tòa mở bán đầu tiên của Vinhomes West Point, với vị trí nằm vuông góc với đường Đỗ Đức Dục, west 3 có tầm view khoáng đạt và đẹp khi một mặt hướng TN view khách sạn JW Marriot – hướng view này chủ yếu tập chung căn 2pn.
Do đó căn 2pn hướng TN rất được khách hàng lựa chọn vì view đẹp lại không bị nắng (hướng TN là hướng mát nhất trong các hướng liên quan đến Tây vì TN lân cận Nam, chỉ bị chiếu xiên ngoài ban công, và nắng cuối ngày)
View khách sạn Marriot có các loại diện tích: 66m2 – 68m2 – 74m2, gồm các căn số: 05, 06, 08A, 08, 09, giá từ 2.9 tỷ
(thiết kế căn 2PN hướng TN - Vinhomes West Point)
Với những khách hàng thích view cảnh quan tiện ích nội khu thì có thể lựa chọn căn hộ 2pn hướng ban công ĐB. Có thể một số khách hàng sẽ lo ngại hướng ĐB bị lạnh do có gió mùa đông bắc, nhưng thực tế thì với tình trạng khí hậu bây giờ ở Việt Nam, đa số là mùa hè, mùa đông ngắn lại chỉ kéo dài tầm 2 tháng, và mùa đông có lấy hướng nào thì trong nhà mình vẫn hay đóng cửa để tránh gió (do chung cư thì hay hút gió) thì khách hàng hoàn toàn yên tâm hướng ĐB vừa mát về mùa hè, giá lại rẻ hơn hẳn so với hướng ĐN
Hướng ĐB view nội khu tòa West 3 chỉ có 2 căn 15A và 12 với 2 loại thiết kế:
(thiết kế căn 2PN rẻ nhất Vinhomes West Point)
TẢI NGAY TOÀN BỘ THIẾT KẾ MẶT BẰNG TÒA WEST 3
(thiết kế căn số 12 vừa đẹp vừa mát)
( thiết kế căn 2PN 08 tòa West 3)
( thiết kế căn 2PN 08A tòa West 3)
( thiết kế căn 2PN 09 tòa West 3)
(phòng khách căn 2pn được trang bị sàn gỗ, điều hòa âm trần DaiKin, đèn âm trần, ban công kính...)
(bếp căn hộ 2pn được trang bị hệ thống tủ bếp, bếp từ và hút mùi TeKa...)
CĂN 2PN TÒA WEST 2

West 2 là tòa căn hộ với ưu thế là có 4 tầng tiện ích ở khối đế, nên từ căn hộ đi xuống là khách hàng sẽ sử dụng luôn được tiện ích mà không cần phải di chuyển.
West 2 có số lượng căn 2pn ít hơn so với west 3, chỉ 4 – 5 căn/sàn. West 2 phù hợp cho những khách hàng hợp hướng cửa Đông Tứ Mệnh, vì hướng cửa là ĐN, ban công TB, do đó giá tiền căn 2PN của west 2 có rẻ hơn so với west 3.
West 2 có duy nhất 1 căn 2pn hướng ban công ĐN là căn số 11, view tiện ích nội khu trên tầng 4 rất sinh động.
Chi tiết giá các căn 2pn tòa west 2:
(giá căn 2pn tòa West 2)
(thiết kế căn 2pn tòa west 2)
( căn OT5A tầng 2-5A tòa West 2)
(mặt bằng tòa West 2)
( thiết kế căn 2PN OT8 tòa West 2)
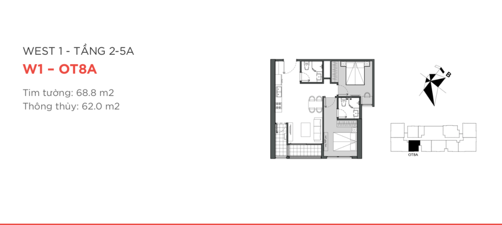
( thiết kế căn 2PN căn OT8A tòa West 2)
(phòng ngủ chính có tường bằng kính với thiết diện lớn để gia chủ có thể nằm trên giường vẫn tận hưởng được được tầm view đắt giá của Vinhomes West Point)
(Phòng ngủ nhỏ được trang bị sàn gỗ, đèn âm trần, điều hòa âm trần DaiKin, tủ âm tường)
NHẤN TẢI NGAY TOÀN BỘ THIẾT KẾ TÒA WEST 2
CĂN 2PN TÒA WEST 1

Là tòa khác biệt nhất so với các 2 tòa trên, vì West 1 là tòa căn hộ đa năng, khách hàng mua có thể để ở hoặc làm văn phòng, nếu làm văn phòng thì được đăng ký kinh doanh.
West 1 có thể nói là tòa có tầm view rất đẹp cho những căn 2pn, vì toàn bộ hướng ĐN của west 1 view cực kỳ thoáng sang bảo tàng Hà Nội và Trung tâm HNQG, đảm bảo với vị trí này, hướng ĐN của west 1 sẽ không bao giờ lo tương lai có dự án nào xây lên chắn tầm nhìn được.
Hướng ĐN west 1 có 3 căn 2pn với diện tích từ 69 – 74.5m2, Khách hàng mua căn 2pn - west 1 hoàn toàn yên tâm với tầm view đắt giá như thế này, sau có nhu cầu chuyển đổi căn hộ to hơn thì có thể bán lại cho cá nhân, công ty hoặc để cho thuê thì vô cùng được giá.
(bảng giá căn west 1)
(căn 2PN số 05A - west 1, thiết kế không gian mở với nhiều ban công, cho khách hàng có thể thoái mái có thể làm vườn rau hoặc kho chứa đồ cho cả gia đình)
Đặc biệt tòa West 1 được Chủ đầu tư Vinhomes triển khai loại hình căn hộ mới – Căn hộ hai chìa khóa “DUAL KEY”
Đón đầu cơn sốt đầu tư Homestay tại Hà Nội, căn hộ hai chìa khóa (Dual Key) mang đến cơ hội linh hoạt trong khai thác sinh lời với thiết kế “2 trong1”.
ĐĂNG KÝ NHẬN CUỐN CẨM NANG MUA NHÀ VINHOMES
Từ một lối đi chung, căn hộ được tách thành hai không gian con được trang bị hệ thống bếp, phòng tắm, phòng ngủ riêng hoàn chỉnh như hai căn hộ độc lập. Nhà đầu tư có thể dành 1 căn để ở và cho thuê căn còn lại, hoặc tận dụng cùng lúc 2 căn để gia tăng khả năng sinh lời.
Dù để ở một phần, cho thuê một phần hay dùng cả hai căn để làm Homestay, nhà đầu tư vẫn chỉ tốn một khoản chi phí quản lý, vận hành (điện, nước...) khiến chị phí thì chỉ một cố định trong khi lợi nhuận lại nhân đôi, luôn được tối ưu.
(thiết kế căn Dual key 1+1, đa dạng nhu cầu cho thuê văn phòng, homestay)
(thiết kế căn Dual key 1+2, chủ nhân có thể ở 1 bên, cho thuê 1 bên, quá tối ưu)
( căn OT8A hướng đông nam tòa West 1)
( căn OT6 hướng đông nam tòa West 1)
NHẤN TẢI BẢNG GIÁ NGAY TÒA WEST 1
Là dòng căn hộ bán chạy nhất tại dự án Vinhomes West Point, các căn hộ 02 PN tại dự án sở hữu một lợi thế nổi bật không thể không nhắc đến đó là lối thiết kế tối ưu diện tích và công năng sử dụng giúp các phòng luôn rộng rãi, đáp ứng nhu cầu sử dụng linh hoạt cho gia chủ.
Trong mỗi căn hộ, không gian sinh hoạt chung và phòng ngủ là nơi chính để nghỉ ngơi, thư giãn, giúp gia chủ lấy lại năng lượng sau mỗi ngày làm việc. Vì vậy, việc đảm bảo mỗi phòng có diện tích đủ rộng rãi, thiết kế hợp lý, tối ưu công năng điều không dễ dàng.
Mỗi căn hộ 02 PN tại Vinhomes West Point đều có không gian sinh hoạt chung (gồm phòng khách, bếp) rộng từ 18m2 kèm hai lô gia hưởng ảnh sáng tự nhiên; 01 phòng ngủ master diện tích trên 15m2 và 01 phòng ngủ nhỏ diện tích trên 11m2 có cửa số lớn đón ánh sáng mặt trời. Nhờ đó, các phòng luôn thông thoáng và tràn đầy sinh khí cho gia chủ tận hưởng. Ngoài ra, nhờ có diện tích rộng và thiết kế hợp lý, gia chủ có thể thỏa sức sáng tạo trang trí cũng như lắp đặt nội thất cho mỗi gian phòng
Tại Vinhomes West Point, khách hàng hoàn toàn yên tâm về vấn đề này
ĐĂNG KÝ NGAY NHẬN THÔNG TIN MỚI NHẤT VỀ CĂN 2PN
►Vinhomes West Point Đỗ Đức Dục, Phạm Hùng
►Vinhomes West Point cơ hội đầu tư sinh lời vượt trội

.gif)



.jpg)



.jpg)






.jpg)






.jpg)





